Alinvest S.p.A

Uffici Direzionali, Via Giovanni Gentile 3, Milan

Uffici Direzionali, Via Giovanni Gentile 3, Milano

Via Giovanni Gentile 3, Milano

Uffici Direzionali, Via Giovanni Gentile 3, Milano

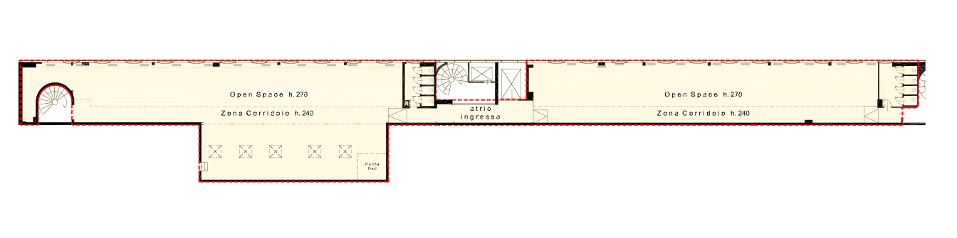
Nel cuore del rinnovato distretto direzionale Stephenson, proponiamo 630 mq di uffici di rappresentanza al terzo piano di una palazzina moderna e raffinata.
Finiture di pregio, impianti avanzati, pavimento flottante e spazi luminosi rendono l’immobile la soluzione ideale per aziende che cercano qualità e comfort operativo.
La posizione, perfettamente connessa con MIND, UpTown e le principali arterie della città, assicura massima comodità per collaboratori e clienti.

da affittare​
0 mq

Posti auto disponibili

dal centro città
0 km

Ideale per medie e grandi aziende

Allestimento a titolo di esempio

Superficie uffici

Immobile direzionale di 630mq, sito al terzo piano di un edificio di quattro piani fuori terra.

Posti auto disponibili

Ampio parcheggio privato antistante l’immobile per dipendenti e visitatori.

Manutentore in loco

La Proprietà assicura un servizio di assistenza, con immediata reperibilità, per la manutenzione e gestione dell’edificio.

Locali ristoro

All’interno del complesso direzione si colloca il “Multisala Certosa” dove sono presenti Old Wild West e Cinelandia con molteplici opzioni per la ristorazione.

Contesto direzionale di pregio

Compresenza di vari Tenats internazionali con ingresso di rappresentanza, ascensore e montacarichi. L’esterno è caratterizzato da un ampio spazio arredato a verde con sedute e dehors per la ristorazione. 

Impianti moderni e facciata continua

Riscaldamento e raffrescamento a fan coil, pavimento sopraelevato e controsoffitto fonoassorbente. La facciata continua assicura un notevole apporto di luce per il benessere dei lavoratori.
 

Posizione strategica

All’incrocio delle principali direttive autostradali in ingresso e uscita verso il centro città di Milano. In adiacenza alle aree di sviluppo Mind-Cascina Merlata e UpTown.

Accessibilità

Collegamenti rapidi con autostrade (A4, A8, Tangenziale Ovest) e mezzi pubblici (tram 1 e 12, autobus 35 e 40, passante Stazione Certosa).

Via Giovanni Gentile 3, Milano

La Location

L’immobile si trova in via Giovanni Gentile 3, Milano, all’inizio della zona Stephenson, in un contesto direzionale di pregio frequentato da importanti realtà multinazionali. La posizione offre un accesso immediato alle principali arterie autostradali del Nord città (A4, A8 e Tangenziale Ovest) e consente di raggiungere rapidamente il centro cittadino attraverso Viale Certosa e Corso Sempione.
A pochi passi si trovano l’area MIND (ex Expo 2015) e il nuovo distretto urbano UpTown, oltre a servizi di trasporto pubblico efficienti: fermata autobus Linea 35, passante ferroviario Stazione Certosa e collegamenti con la metropolitana (MM Molino Dorino). Una posizione che unisce comodità, visibilità e connessioni strategiche, ideale per aziende alla ricerca di un contesto dinamico e ben collegato.

Via Giovanni Gentile 3, Milano

distanza dai punti strategicI
Milano centro città
8 km
Aeroporto Milano Linate
18 km
Aeroporto Milano Malpensa
40 km
Rho Fiera Milano
4,5 km
Area Expo
2 km
Fiera Milano City
4 km 
Accesso Tangenziale Ovest
1 km
Accesso Autostrade A4-A8
2,5 km
Accesso Autostrade A4-A8
2,5 km
Accesso Autostrade A4-A8
2,5 km
MEZZI DI TRASPORTO ALL'AREA
Tram
1, 12
Autobus
35, 40

Contattaci

COMPILA IL FORM PER RICEVERE MAGGIORI INFORMAZIONI.
TI RICONTATTEREMO AL PIÙ PRESTO.
Copyright © 2026 Media Service Italia SEO & Web Design by Media Service Italia. Hosted by Media Hosting Italia